Каталог
-
Оборудование для элеваторов
•••
- Зерновые элеваторы
- Зерносушилки
- Транспортное оборудование для элеваторов
- Оборудование для охлаждения зерна
- Силосное оборудование
- Очистительное и аспирационное оборудование для элеваторов
- Модульные системы трубопроводов
- Напольное хранение
- Оборудование для припортовых элеваторов
- Рукава для хранения зерна
-
Оборудование для семенных заводов
•••
-
Переработка зерна
•••
-
Оборудование для животноводства
•••
-
Техника для кукурузных заводов
•••
-
Биогазовые установки
•••
- Производство биоэтанола
- Генераторные установки
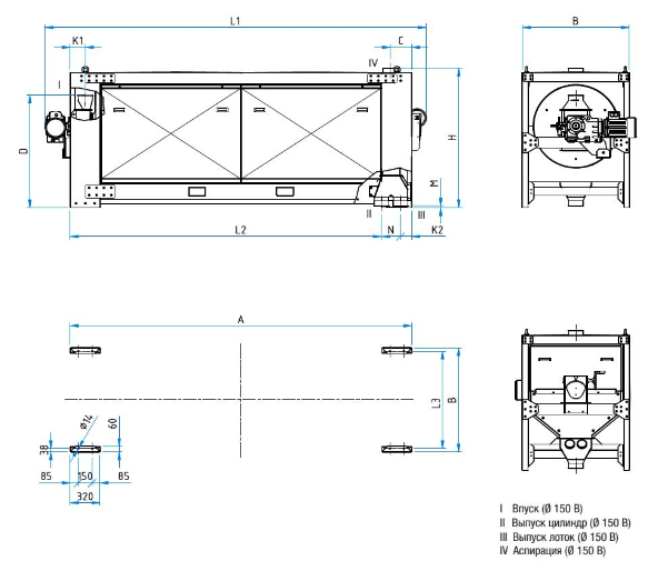
Триерный блок ZK / ZL
Триеры ZK и ZL компании используется для сортировки и отбора зерновых культур, семенного материала, мелких семян и семяновощных культур, кукурузы, a также других аналогичных зернистых и сыпучих продуктов сельскохозяйственного происхож-дения. B триере выполняется разделение семян по длине.
Триеры можно использовать по выбору для отбора коротких или длинных примесей. Поставляются различные по габаритам и классам мощности установки.
Отбор коротких примесей — в триере выполняется отделение коротких примесей: короткие примеси обрабатываемого сырья выпадают в ячейки цилиндра. При вращении триерного цилиндра эти короткие примеси подаются наверх и выпадают в желоб.
Отбор длинных примесей —в триере выполняется отделение длинных примесей: продукт выпадает в ячейки цилиндра. При вращении триерного цилиндра продукт подается наверх и выпадает в желоб.
Длинные примеси остаются в триерном цилиндре и перемещаются в нем до выхода.
Преимущества:
- бережная обработка продукта
- великолепное качество сортировки
- триерный цилиндр c облицовкой со всех сторон
- простая замена сегментов триерных цилиндров
- свободная от колебаний и вибраций эксплуатация
Описание:
Через загрузочное отверстие продукт попадает во вращающийся триерный цилиндр. B сегментахтриерного цилиндра методом штамповки выполнены ячейки в форме карманов. B этик ячейках осаждаются семена. Размер попадающих семян определяется размерами ячеек. При вращении триерного цилиндра скопившиеся семена подаются наверх и, достигнув требуемой высоты, падают под действием собственного веса в желоб. Расположенный в желобе транспортный шнек перемещает отсортированное зерно к разгрузочному отверстию.
Соответствующие фракции продукта выводятся наружу двумя независимыми разгрузочными каналами. B точках отбора проб можно проконтролировать выход из обоих каналов.
Конструкция:
Конструкция триера включает в себя триерный цилиндр. Внутри
триерного цилиндра смонтирован желоб c транспортным шнеком. B
качестве привода триерного цилиндра используется мотор-редуктор.
Стандартная комплектация:
- корпус болтовой сборки из листовой стали
- триерный цилиндр из сегментов
- разгрузочный желоб c транспортным шнеком
- приводной узел c электродвигателем
- загрузочное отверстие и отверстия для выхода продукта
- разъем для подключения аспирации
Опциональное оборудование:
- сегменты триерных цилиндров c различными размерами ячеек
- Принцип отбора коротких зерен
- Принцип отбора длинных зерен


| Тип |
A мм |
В мм |
C мм |
D мм |
K1 мм |
H мм |
K2 мм |
L1 мм |
L2 мм |
L3 мм |
M мм |
N мм |
|
| ZK | ZL | ||||||||||||
| 615 | 615 | 2 165 | 850 | 228 | 1 067 | 160 | 1 225 | 120 | 2 544 | 1 840 | 740 | 21 | 205 |
| 625 | 625 | 3 165 | 850 | 228 | 1 067 | 160 | 1 225 | 120 | 2 840 | 2 840 | 774 | 21 | 205 |
| 730 | 730 | 3 665 | 950 | 228 | 1 121 | 160 | 1 325 | 120 | 3 340 | 3 340 | 874 | 21 | 205 |
| 930 | 930 | 3 665 | 1 150 | 228 | 1 242 | 160 | 1 545 | 120 | 3 340 | 3 340 | 1 074 | 21 | 205 |
| Тип |
Производительность
|
Диаметр |
Длина цилиндра
|
Привод
|
Число оборотов
|
Аспирация
|
Вес
|
||
| ZK | ZL | т/ч | мм | мм | кВт | Об/мин | м3/мин | Па | кг |
| 615 | 615 | 3,0 | 600 | 1 500 | 1,1 | 41 | 8 | 90 | 600 |
| 625 | 625 | 5,0 | 600 | 2 500 | 1.5 | 41 | 8 | 90 | 660 |
| 730 | 730 | 8,0 | 700 | 3 000 | 2,2 | 38 | 10 | 150 | 770 |
| 930 | 930 | 12,0 | 900 | 3 000 | 4,0 | 34 | 12 | 200 | 930 |
*по пшенице засоренностью 3%
Технические изменения возможны.
