Каталог
-
Оборудование для элеваторов
•••
- Зерновые элеваторы
- Зерносушилки
- Транспортное оборудование для элеваторов
- Оборудование для охлаждения зерна
- Силосное оборудование
- Очистительное и аспирационное оборудование для элеваторов
- Модульные системы трубопроводов
- Напольное хранение
- Оборудование для припортовых элеваторов
- Рукава для хранения зерна
-
Оборудование для семенных заводов
•••
-
Переработка зерна
•••
-
Оборудование для животноводства
•••
-
Техника для кукурузных заводов
•••
-
Биогазовые установки
•••
- Производство биоэтанола
- Генераторные установки
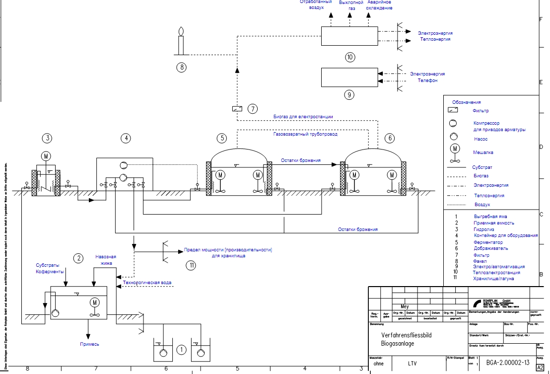
Технологическая схема БГУ
Компоненты оборудования:
1. Стоки с фермы
2. Приемная емкость с мешалкой
3. Гидролиз
4. Насосный контейнер
5. Ферментер с отоплением, мешалкой и двойным (внутренним и внешним) пленочным перекрытием в качестве газового пузыря
6. Дображиватель с отоплением, мешалкой и двойным (внутренним и внешним) пленочным перекрытием в качестве газового пузыря
7. Фильтра
8. Факел
9. Контейнер для электротехники, управления и автоматики
10.Блочная ТЭЦ

- Все арматуры приводятся в действие пневмоприводом и регулируются, как и все аппараты и насосы, автоматикой.
- На схеме не изображены многочисленные измерительные приборы, значения которых постоянно контролируются и регистрируются автоматикой и на их основании происходит функционирование установки.
- Кабель низкого напряжения и управления.
- Система управления и защиты функциональных процессов (техническое и програмное обеспечение).
© ltvukraine.com.ua, 2010 - 2026
